Novità in scala TT (1:120) - Dicembre 2025


Ben arrivato! Fai login o registrati per fruire di tutte le funzionalità del forum e del sito.
Se eri già registrato e non ti ricordi la password usa questo link per recuperare l'accesso.
Sito e forum dedicati al fermodellismo, il nostro hobby viene praticato in molte maniere diverse, tutte ugualmente valide: hai un plastico? oppure sei un collezionista? oppure un semplice appassionato? Non esitare a scrivere nel forum, tutti gli interventi sono benvenuti... Postate foto e video del vostro plastico e chiedete aiuto per ogni problema o curiosità inerente al nostro hobby.
Rinnovo/Iscrizione/Donazioni GAS TT - 2026


Buone Feste a tuTTi

Carro FF scala TT

Autocostruzioni ed elaborazioni realizzate in scala TT

Moderatore: Andrea

Messaggio
Autore
Avatar utente
MrPatato76
Socio GAS TT
Messaggi: 5794
Iscritto il: lunedì 27 agosto 2012, 11:14
Nome: Roberto
Regione: Lombardia
Città: Nova Milanese
Stato: Non connesso

Carro FF scala TT

#1 Messaggio da MrPatato76 »

Come emerso da altra discussione, vogliamo iniziare a farci le ossa e progettare insieme il Carro FF in scala TT.
Questa discussione ha lo scopo di condividere disegni, documentazioni, esperienze, tecnologie e finalizzare il progetto finale.
Iniziamo la prima fase, cioè la raccolta dei documenti necessari (disegni, foto dettagli, misure) per stendere il progetto del modello.
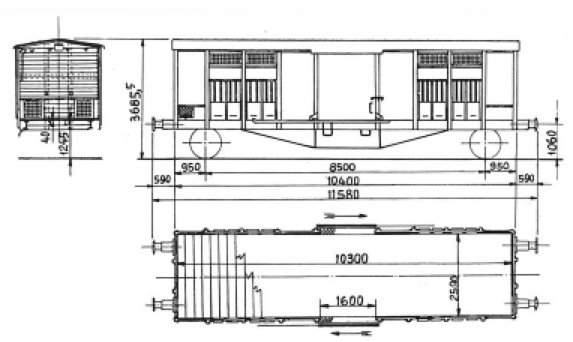
Io in rete ho trovato solo questo disegno...
ghkrs-drawexff.jpg
Chi ha altri dati può gentilmente postarli qui?? [99]
Non hai i permessi necessari per visualizzare i file allegati in questo messaggio.


Roberto - Socio GasTT - Socio CMP

Avatar utente
giuseppe_risso
Socio GAS TT
Messaggi: 7738
Iscritto il: giovedì 27 ottobre 2011, 22:44
Nome: Giuseppe
Regione: Liguria
Città: Chiavari
Stato: Non connesso

Re: Carro FF scala TT

#2 Messaggio da giuseppe_risso »

UN po' di foto del tipo FF passo lungo tetto a spioventi.
FF.jpg
FF2.jpg
carroFFvercelli200413.jpg
Questo invece ha il passo corto (ghms) , ma si vede bene la testata che è uguale
ghms.jpg
Non hai i permessi necessari per visualizzare i file allegati in questo messaggio.

Avatar utente
sal727
Messaggi: 4065
Iscritto il: domenica 26 aprile 2015, 17:22
Nome: Salvatore
Regione: Emilia Romagna
Città: Bologna
Ruolo: Moderatore
Stato: Non connesso

Re: Carro FF scala TT

#3 Messaggio da sal727 »

Queste sono più chiare, in 4 versioni
Tavola-041.jpg
Tavola-042.jpg
Tavola-043.jpg
Tavola-045.jpg
Non hai i permessi necessari per visualizzare i file allegati in questo messaggio.

Avatar utente
MrPatato76
Socio GAS TT
Messaggi: 5794
Iscritto il: lunedì 27 agosto 2012, 11:14
Nome: Roberto
Regione: Lombardia
Città: Nova Milanese
Stato: Non connesso

Re: Carro FF scala TT

#4 Messaggio da MrPatato76 »

Grazie Sal.
Roberto - Socio GasTT - Socio CMP

Avatar utente
Fabrizio
Socio GAS TT
Messaggi: 11334
Iscritto il: giovedì 10 novembre 2011, 21:17
Nome: Fabrizio
Regione: Piemonte
Città: Piossasco
Ruolo: co-amministratore
Età: 41
Stato: Non connesso

Re: Carro FF scala TT

#5 Messaggio da Fabrizio »

Nel fine settimana, se riesco, guardo se c'è qualcosa nell'archivio della associazione DSC. Se intanto volete guardare se trovate qualcosa, io posso scaricarli e fornirveli.

http://www.scalatt.it/GASTT_DSC.htm

http://www.associazionedsc.it/search.php
Fabrizio

Avatar utente
benigni99
Socio GAS TT
Messaggi: 1130
Iscritto il: domenica 10 agosto 2014, 14:42
Nome: Filippo
Regione: Toscana
Città: Firenze
Stato: Non connesso

Re: Carro FF scala TT

#6 Messaggio da benigni99 »

Filippo Benigni - Il mio canale YouTube - Il mio profilo Instagram

"Imparare a vedere è il tirocinio più lungo in tutte le arti." Edmond De Goncourt

Avatar utente
gavinca
Socio GAS TT
Messaggi: 2044
Iscritto il: martedì 22 maggio 2012, 13:07
Nome: Carlo
Regione: Piemonte
Città: Bellinzago Novarese
Stato: Non connesso

Re: Carro FF scala TT

#7 Messaggio da gavinca »

Dal sito www.leferrovie.it

gbhs
gbhs_1.jpg
gbhs_2.jpg
tab_gbhs.jpg
ghkrs
ghkrs_1.jpg
ghkrs_2.jpg
tab_ghkrs.jpg
ghms
ghms_1.jpg
ghms_2.jpg
tab_ghms.jpg
gs
gs_1.jpg
gs_2.jpg
tab_gs.jpg
Non hai i permessi necessari per visualizzare i file allegati in questo messaggio.

Avatar utente
MrPatato76
Socio GAS TT
Messaggi: 5794
Iscritto il: lunedì 27 agosto 2012, 11:14
Nome: Roberto
Regione: Lombardia
Città: Nova Milanese
Stato: Non connesso

Re: Carro FF scala TT

#8 Messaggio da MrPatato76 »

Per il momento direi di attenerci solo sulla versione FF con tetto spiovente, altrimenti si rischia di divagare e disperderci..
Roberto - Socio GasTT - Socio CMP

Avatar utente
gavinca
Socio GAS TT
Messaggi: 2044
Iscritto il: martedì 22 maggio 2012, 13:07
Nome: Carlo
Regione: Piemonte
Città: Bellinzago Novarese
Stato: Non connesso

Re: Carro FF scala TT

#9 Messaggio da gavinca »

Mi sembrava utile, per chi come me è ignorante in materia, avere le varie tipologie di carri chiusi per vedere le differenze.
Ma se creano "dispersione" togliamoli dalla discussione.

Vista la carenza di materiale fotografico dal vero si potrebbero inserire anche le foto dei modelli da cui prendere spunto per i dettagli.
Mi sembra che siano stati prodotti da roco e acme.

Avatar utente
MrPatato76
Socio GAS TT
Messaggi: 5794
Iscritto il: lunedì 27 agosto 2012, 11:14
Nome: Roberto
Regione: Lombardia
Città: Nova Milanese
Stato: Non connesso

Re: Carro FF scala TT

#10 Messaggio da MrPatato76 »

gavinca ha scritto: venerdì 25 gennaio 2019, 14:29
Vista la carenza di materiale fotografico dal vero si potrebbero inserire anche le foto dei modelli da cui prendere spunto per i dettagli.
Mi sembra che siano stati prodotti da roco e acme.
Assolutamente d'accordo. [104]
Roberto - Socio GasTT - Socio CMP

Avatar utente
sal727
Messaggi: 4065
Iscritto il: domenica 26 aprile 2015, 17:22
Nome: Salvatore
Regione: Emilia Romagna
Città: Bologna
Ruolo: Moderatore
Stato: Non connesso

Re: Carro FF scala TT

#11 Messaggio da sal727 »

Ho trovato una bella foto, abbastanza chiara

Carro_FF.jpg
Non hai i permessi necessari per visualizzare i file allegati in questo messaggio.

Avatar utente
giuseppe_risso
Socio GAS TT
Messaggi: 7738
Iscritto il: giovedì 27 ottobre 2011, 22:44
Nome: Giuseppe
Regione: Liguria
Città: Chiavari
Stato: Non connesso

Re: Carro FF scala TT

#12 Messaggio da giuseppe_risso »

questo è a passo corto

Carro_FS_UIC-F_2.jpg
Non hai i permessi necessari per visualizzare i file allegati in questo messaggio.

Avatar utente
giuseppe_risso
Socio GAS TT
Messaggi: 7738
Iscritto il: giovedì 27 ottobre 2011, 22:44
Nome: Giuseppe
Regione: Liguria
Città: Chiavari
Stato: Non connesso

Re: Carro FF scala TT

#13 Messaggio da giuseppe_risso »

Sul sito della fondazione FS ci sono disegni bellissimi, molto dettagliati e con tutte le misue.
Questo è indicato come carro E

1200px.jpg
mi sembra quello che nelle foto viene indicato come FF passo lungo.

Questo è indicato come F

A me piace di più il primo, ma anche questo non è male.
Non hai i permessi necessari per visualizzare i file allegati in questo messaggio.

Avatar utente
giuseppe_risso
Socio GAS TT
Messaggi: 7738
Iscritto il: giovedì 27 ottobre 2011, 22:44
Nome: Giuseppe
Regione: Liguria
Città: Chiavari
Stato: Non connesso

Re: Carro FF scala TT

#14 Messaggio da giuseppe_risso »

sempre dal sito fondazione FS
carroF.jpg
tipo F.jpg
Non hai i permessi necessari per visualizzare i file allegati in questo messaggio.

Avatar utente
Edgardo_Rosatti
Socio GAS TT
Messaggi: 5178
Iscritto il: venerdì 28 ottobre 2011, 0:59
Nome: Edgardo
Regione: Lombardia
Città: Muggiò
Età: 61
Stato: Non connesso

Re: Carro FF scala TT

#15 Messaggio da Edgardo_Rosatti »

Questo ce l'ho Giuseppe, è di Rivarossi:
IMG_20190126_220027.jpg
IMG_20190126_220014.jpg
IMG_20190126_220000.jpg
Ok, ma quale fare?
Non hai i permessi necessari per visualizzare i file allegati in questo messaggio.
ED

Avatar utente
giuseppe_risso
Socio GAS TT
Messaggi: 7738
Iscritto il: giovedì 27 ottobre 2011, 22:44
Nome: Giuseppe
Regione: Liguria
Città: Chiavari
Stato: Non connesso

Re: Carro FF scala TT

#16 Messaggio da giuseppe_risso »

Si potrebbe fare un piccolo sondaggio. Io sono per quello indicato nel disegno come EE

Avatar utente
adobel55
Socio GAS TT
Messaggi: 11416
Iscritto il: venerdì 18 novembre 2011, 15:51
Nome: Adolfo
Regione: Lazio
Città: Roma
Ruolo: Moderatore
Stato: Non connesso

Re: Carro FF scala TT

#17 Messaggio da adobel55 »

Anche a me piace il carro EE, comunque insieme a qualche F a passo corto in convoglio insieme non male.
Se non ricordo male qualcuno in scala TT li aveva portati (Riccardo ?)
Tempo fa li avevo trovati in qualche sito di negozio di modellismo.
Ciao

Avatar utente
giuseppe_risso
Socio GAS TT
Messaggi: 7738
Iscritto il: giovedì 27 ottobre 2011, 22:44
Nome: Giuseppe
Regione: Liguria
Città: Chiavari
Stato: Non connesso

Re: Carro FF scala TT

#18 Messaggio da giuseppe_risso »

Non sapevo esistessero in commercio. Se si, cambierei soggetto. Con tutto quello che manca non farei una cosa che già c'è.

Avatar utente
Andrea
Socio GAS TT
Messaggi: 23682
Iscritto il: mercoledì 26 ottobre 2011, 19:42
Nome: Andrea
Regione: Lombardia
Città: Milano
Ruolo: Amministratore
Stato: Non connesso

Re: Carro FF scala TT

#19 Messaggio da Andrea »

Personalmente non ho preferenze particolari, mi piace molto quello a passo corto di cui Giuseppe ha inserito la foto (colore grigio).
Una curiosità: perchè alcuni carri hanno una colorazione differente, ad esempio grigia?
C'è una ragione particolare?
Andrea - “I fermodellisti sono tanti e legati da un'amicizia sincera, che esplode in una cordialità ormai rara nel mondo rumoroso ed incerto di oggi”. La valle incantata

Avatar utente
adobel55
Socio GAS TT
Messaggi: 11416
Iscritto il: venerdì 18 novembre 2011, 15:51
Nome: Adolfo
Regione: Lazio
Città: Roma
Ruolo: Moderatore
Stato: Non connesso

Re: Carro FF scala TT

#20 Messaggio da adobel55 »

Se non ricordo male il colore grigio era usato per carri privati e carri di servizio.
Per i carri citati in TT li avevo visti qualche anno fa ora non li ho più visti.
Dicevo che qualcuno del gruppo li aveva comprati.
Farò una ricerca.
Ciao

Avatar utente
benigni99
Socio GAS TT
Messaggi: 1130
Iscritto il: domenica 10 agosto 2014, 14:42
Nome: Filippo
Regione: Toscana
Città: Firenze
Stato: Non connesso

Re: Carro FF scala TT

#21 Messaggio da benigni99 »

Andrea ha scritto: domenica 27 gennaio 2019, 10:26 Una curiosità: perchè alcuni carri hanno una colorazione differente, ad esempio grigia?
C'è una ragione particolare?
I carri grigi, come ben detto da Adolfo erano prevalentemente veicoli di servizio, detta livrea è rimasta sino alla seconda metà degli anni '80 (mi pare); poi è subentrata l'attuale croma in giallo e giallo/blu (per i carri soccorso Vs e Vsz).
adobel55 ha scritto: domenica 27 gennaio 2019, 11:38 Per i carri citati in TT li avevo visti qualche anno fa ora non li ho più visti.
Dicevo che qualcuno del gruppo li aveva comprati.
A memoria dovrebbero essere i carri prodotti da Hädl.

Filippo
Filippo Benigni - Il mio canale YouTube - Il mio profilo Instagram

"Imparare a vedere è il tirocinio più lungo in tutte le arti." Edmond De Goncourt

Avatar utente
sal727
Messaggi: 4065
Iscritto il: domenica 26 aprile 2015, 17:22
Nome: Salvatore
Regione: Emilia Romagna
Città: Bologna
Ruolo: Moderatore
Stato: Non connesso

Re: Carro FF scala TT

#22 Messaggio da sal727 »


Avatar utente
giuseppe_risso
Socio GAS TT
Messaggi: 7738
Iscritto il: giovedì 27 ottobre 2011, 22:44
Nome: Giuseppe
Regione: Liguria
Città: Chiavari
Stato: Non connesso

Re: Carro FF scala TT

#23 Messaggio da giuseppe_risso »

I carri già in commercio sarebbero troppo uguali a quelli su cui ci si orientava.
Lascerei perdere.
Tornerei piuttosto sul Gbs segnalato da Carlo, ha la difficoltà del tetto, ma la si può risolvere ( stampato 3D?).
FS_Gbs_21_83_150_0_778-0_Bra_(102).JPG
O in alternativa andrei su un carro scoperto. ce ne sono diversi, quelli che trovo più interessanti sono i due sotto:
carro L congaritta.jpg
Carro L 20 tonn..jpg
Non hai i permessi necessari per visualizzare i file allegati in questo messaggio.

Avatar utente
benigni99
Socio GAS TT
Messaggi: 1130
Iscritto il: domenica 10 agosto 2014, 14:42
Nome: Filippo
Regione: Toscana
Città: Firenze
Stato: Non connesso

Re: Carro FF scala TT

#24 Messaggio da benigni99 »

Beh, sono due veicoli completamente differenti, e non solo per il tipo di carro: I Gbs infatti, dovrebbero essere stati prodotti dal 1984, e quindi sono ambientabili dall'epoca IV fino ai giorni nostri (bisogna tener conto però che attualmente questi carri, anche se più frequentemente i Ghms, sono ubicati in scali di dimensioni medio/grandi e depositi, e non più in servizio per Mercitalia Rail), mentre gli altri due carri serie L sono ambientabili fino all'epoca III o al massimo (ma la vedo dura, soprattutto per quello senza garitta, che pare sia stato un ex carro della Rete Mediterranea) IVa.

Filippo
Filippo Benigni - Il mio canale YouTube - Il mio profilo Instagram

"Imparare a vedere è il tirocinio più lungo in tutte le arti." Edmond De Goncourt

Avatar utente
gavinca
Socio GAS TT
Messaggi: 2044
Iscritto il: martedì 22 maggio 2012, 13:07
Nome: Carlo
Regione: Piemonte
Città: Bellinzago Novarese
Stato: Non connesso

Re: Carro FF scala TT

#25 Messaggio da gavinca »

A me il passo lungo (FF o EE?) non dispiaceva, anche se simile a quello di hadl comunque è un carro diverso e come diceva Adolfo si potrebbero mettere insieme nella stessa composizione.
Se invece decidiamo di cambiare la mia preferenza è per il Gbs.
Il tetto penso si possa fare in 3D e anche replicarlo in resina.

Torna a “AUTOCOSTRUZIONI ed ELABORAZIONI IN SCALA 1:120”